Open Concept 1600 Sq Ft House Plans
Olivia Luz
Small house plans less than 1600 sq.
1742 heated sqft beds. 78 3 w x 54 3 d compare plans. This wonderful southern cottage home is economically designed and with only 1600 square feet this is a gem. Enter a plan or project number press enter or esc to close search.
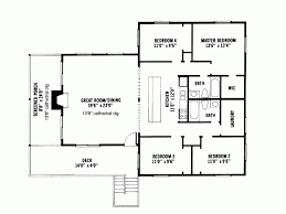
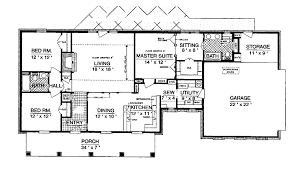
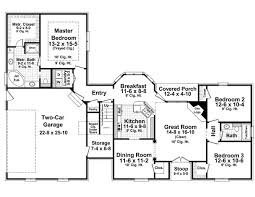
We carry a variety of plans in the 1600 and 1700 square foot range in just about any style you can imagine. 1 600 square foot house plans plan number 86101. They may save square footage with slightly smaller bedrooms and fewer designs with bonus rooms or home offices opting instead to provide a large space for entertaining needs. Popular 1600 sq ft open concept house plans awesome barn homes floor plans open concept house plans image the image above with the title popular 1600 sq ft open concept house plans awesome barn homes floor plans open concept house plans image is part of open concept house plans picture gallery size for this image is 728 421 a part of house plans category and tagged with open concept.
Our under 1600 sq. The spacious kitchen includes an island snack bar with arched opening pantry and plenty of work space plus beautiful cabinetry. Home plans tend to have large open living areas that make them feel larger than they are. 1600 1700 square foot home plans are ideal for homeowners looking for a house with plenty of breathing room but not too much upkeep.
Source : pinterest.com



